Hér er kynnt framúrskarandi nýlegt einbýlishús sem byggt hefur verið við Esjurætur þar sem áður hét Kjalarneshreppur.
Það sem gerir húsið sérstakt eru kannski sjálfsagðir hlutir sem höfundinum, Ólafi Axelssyni arkitekt, hefur tekist að fanga og skila í sérlega góðu húsi. Þegar ég segi þetta á ég við að það sé auðvitað sjálfsagt að allar byggingar taki mið af umhverfi sínu. Nýti kosti umhverfisins og dragi úr göllum þess, endurspegli staðarandann og bæti umhverfið.
Ólafi, sem er einn af rekstraraðilum VA arkitekta, hefur hér tekist að draga umhverfið inn í húsið og opna tækifæri þeirra sem þarna eru til þess að njóta umhverfisins innanfrá.
Þetta er ekki auðvelt og ekki á færi allra að fanga umhverfið með þessum hætti. Sumir virðast jafnvel ekki taka eftir því umhverfi sem þeir eru að teikna inn í.
Húsið er laust við alla nútíma „stæla“ byggingarlistarinnar, er engin tískubóla og mun því standast tímans tönn um ókomin ár.
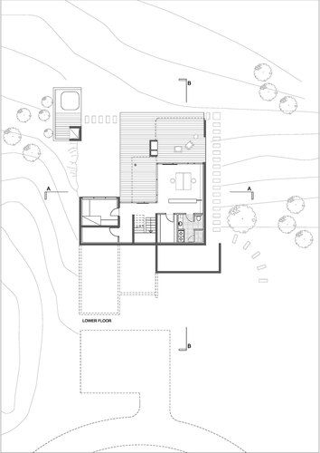
Það er steypt á staðnum og er 252 m2 á stærð og stendur á 1,5 ha landi.
Endilega skoðið afstöðumyndina, grunnmyndir og snið hér að neðan.
Myndirnar sem fylgja færslunni eru teknar af Gunnar Sverrisson og eru fengnar af eftirfarandi slóð þar sem fjallað er nánar um húsið:
http://europaconcorsi.com/projects/270606-VA-arkitektar-Mo-kollar-House
Kistufellið blasir við út um eldhúsgluggann
Húsið virðist stannda á stalli í landslaginu þannig að útsýni og sólargandur nýtist til fulls. Aðkoman er bæði frá austri og vesturs. Maður genguir út í sólina á morgnana og kemur heim með sólinni siðdegis.












Hilmar Þór Björnsson arkitekt
Áberandi fallegt og vel stílfært hús, sem í sjálfu sér er ekki „áberandi“ því það fellur vel inn í landið. Fer þarna hjá daglega og lít oft til þessa húss sem er prýði fyrir Reykjavík og Kjalarnes. Þakútfærslan er góð, ekki þakkantar sem er afa sjaldgæft, sýnist ég ekki sjá þakrennur, sem væri afar sérstakt, er það rétt?
Tek undir með Kristjáni smið, hefði kosið fyrir „mig“ meira jafnvægi á loftum og gólfefnum, þessi efni eru sýnilega vönduð og endast í áratugi ef vill.
AFAR FLOTT og góður arkitektur. (Tolli væri flottur þarna 🙂 )
Er einnig meðmæltur fjölbreyttni í þökum, skil ekki hvers vegna bogadregin eða braggalaga þök eru varla notuð, ein flott og hagkvæm þau geta verið við okkar veðurfarsaðstæður. Getur verið að andi braggahverfana gömlu sé enn að skekkja ímynd nútíma arkitekta hér?
ER meðmæltur flötum þökum þar sem það passar sem eru mjög góð eftir að „við“ lærðum að útfæra þau og til þess passandi efni. Stór hluti af einbýlum og all flest fjölbýli síðustu áratugina eru með flötum þökum sem gera sig mjög vel, auk annarra húsa.
Það er sem sagt gríðarlegur fjöldi eldri einbýlishúsa eftir 1970 með flötum þökum sem búið er að endurbyggja á þann hátt sem þekking og efni duga til og er það vel. Ég þekki hins vegar engan sem byggði sitt hús með flötu þaki til þess að hafa garð þar uppi á, eins og erlendis þekkist, þekki ég nú samt býsna marga.
Vandinn hjá okkur með liti er bæði í húsalitum og fatnaði, fólk hér í skammdeginu þyrfti svo sannarlega að nota liti til að glæða mannlífið, en það er oft í sauðalitunum, því miður, og vekur eftirtekt erlendra oft…
Þetta er Byggingarlist með stórum staf. Mannvirkið er skrifað inn í staðinn og virðist alltaf hafa átt heima þarna. Það er gaman að sjá fallegt þak prýða húsið, vonandi fer þakið að fá uppreisn æru hér á landi.
Hér á landi höfum við notað flata þakið í fullkomnu tilgangsleysi sem stílbragð undanfarin 20 ár. Í upphafi voru þök höfð flöt ef til stóð að nýta þakflötinn undir td. þakgarð. Með tímanum gleymdist þetta og eftir stóð modernisminn sem útjöskuð klisja með flötu lekandi þaki.
Þetta glæsilega hús eftir Ólaf Axelsson vísar á betri tíð.
Vissulega flott hús þótt það sé dálítið til í þessu hjá Kristjáni smið. En húsið stendur ekki í Mosfellsbæ, – því miður. „Mókollar House is located at a steep slope on Mount Esja in the vicinity of Reykjavík.“ Þarmeð er það þar sem áður hét Kjalarneshreppur en er nú hluti af Reykjavík.
Shit.
Ég er stundum fljótur á mér.
Lagfæri þetta.
Þakka ábendinguna.
Flott að á allann hátt nema einn.
Það er harðviðurinn á gólfum og innréttingum sem er ekki alveg að gera sig með furuloftunum. En þetta er smáatriði.
Sjónarmið kristjáns smiðs er umhugsunarvert. En ég vil segja það að arkitektinn er nánast aldrei einráður og oft verða málamiðlanir. Þá gefur arkitekltinn eftir á sviðum sem ekki varða meginhugmynd hússins. Efisval innanhúss á gólfi og innréttingum er ekki meginmál. Ég veit ekki hvort það var tilfellið hér en tel það ekki ósennilegt að þarna hafi verið málamiðlað. Þessi gólfefni og eldhúsinnréting gengur úr sér fljótt miðað við líftíma hússins og þess vegna er þetta umrædda efnisval ekki meginmál.
Maður fær það svolítið á tilfinninguna að húsið hafi komið svífandi þarna og sest niður. Landslagið heldur sér alveg heim að vegg. Fyrstu myndinar kallast á við gamla sveitarbæi, þó vissulega sé húsið mjög nútímalegt.
Gaman að skoða.
Bilað flott græja !
Það er akkúrat þetta frelsi frá hér kem ég arkitektúr sem gerir þetta að fallegu heimili. Þetta er nýtískulegt og hlýlegt. þveröfugt við þessa staðalímynd nútíma einbýlishúsa með hvítum útveggjum, flötu þaki, Tolla á veggjunum og Epalhúsgögnum og svo auðvitað einni ónothæfri Stark sítrónupressu á eldhúsborðinu.
Guðbjörg, mér skilst á færslu þinni að þú metir listaverkin hans Tolla ekki mikils, a. m. k. ekki sem punt á stofuvegginn. Ekki er til neins að þræta um smekksatriði einsog Rómverjar hinir fornu vissu ( „de gustibus non disputandum est „) mætavel. Á hinn bóginn held ég þú farir nokkuð langt aftur í tímann til að finna einungis „flöt þök og hvíta útveggi“ í íslenskum einbýlishúsum. Mér sýnist þetta hafa breyst mjög til batnaðar ; skynsamlegur halli kominn á þakið á flestum nýrri (einbýlis)húsum og einnig er áberandi er að í stað skjannahvítra útveggja eru menn farnir að notast við ýmsar klæðningar aðrar, gerviefni, kopar ( Sæbraut 13, Seltj.nesi ) og steinplötur – t. d. á fjölbýlishúsin sem eru í byggingu við Sundlaug Seltjarnarness. Að öðru leyti er ég þér sammála : húsið er fram úr skarandi, enda augljóslega allt til staðar sem þarf fyrir vel heppnaðan arkítektúr: fagurt umhverfi + glás af peningum. Hjá mér vaknar því sú spurning : Hvers vegna hefur íslenskum arkítektum ekki tekist að reisa fjölbýlishús í sama anda ? Öll nýju fjölbýlishúsin – eflaust afar vandaður frágangur – líta út einsog búnkerar frá teiknistofu þeirra félaga Albert Speer & A. Hitler – dimm, lokuð og fráhrindandi. Mýrargatan til dæmis. Þarna vantar allan þennan léttleika og birtu sem maður finnur í ( fjölbýlahúsa-) arkítektúr Le Corbusier.
Flott hús.